| 所在地 | 観音寺市村黒町 |
|---|---|
| 沿線・駅・交通 | 予讃線観音寺 徒歩19分 |
| 小学校区 | |
| 中学校区 | |
| 価格 | 150,000円 |
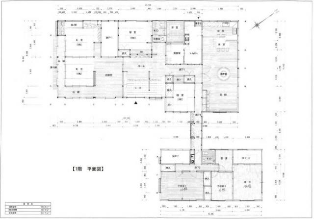
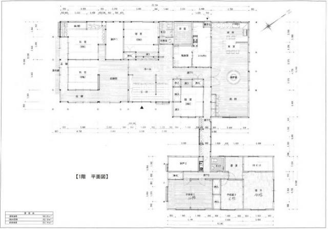
| 間取り | 8LDK |
| 間取り内訳 | |
| 築年月 | 2002年11月 |
| 建物構造 | 木造 |
| 駐車場 | 有 |
| 現況 | 空家 |
| 設備 | エアコン、トイレ、収納スペース、Wクロゼット、システムキッチン、洗面所、洗面台、照明器具、庭 |
| 特記事項 | 閑静住宅街、、 |
| 備考1 | |
| 備考2 | |
| 取引態様 | 媒介 |
| 面積 | 専有面積・建物面積:352.18㎡ |
|---|---|
| 建物・階 | 1階建 |
| 建物名 | |
| バルコニー | |
| 賃貸区分 | |
| 契約期間 | 2年 |
| 更新料 | |
| その他一時金 | |
| 入居日 | 相談 |
| 敷金 | 2ヶ月 |
| 精算方式 | |
| 礼金 | 1ヶ月 |
| 保証金 | |
| 管理費 | |
| 保険 | 要2年 |
| 共益費 | |
| 雑費 |
周辺地図
お問い合わせ先
(株)おりーぶ不動産
香川知事免許(1)4627号
(公社)香川県宅地建物取引業協会
四国地区不動産公正取引協議会
香川県観音寺市出作町413
TEL:0875-24-8602 FAX:0875-24-8603
この物件に関する資料請求・お問い合わせは、直接上記不動産業者にお願いいたします。
