| 所在地 | 三豊市三野町 |
|---|---|
| 沿線・駅・交通 | |
| 小学校区 | |
| 中学校区 | |
| 価格 | 3,980,000円 |
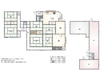
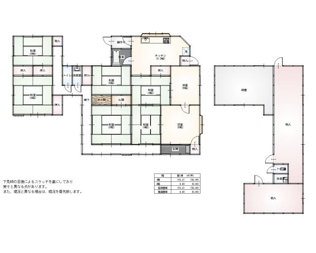
| 間取り | 8DK |
| 間取り内訳 | |
| 築年月 | 1989年00月 |
| 建物構造 | 木造瓦葺平家建 |
| 駐車場 | 4 |
| 現況 | |
| 設備 | |
| 特記事項 | |
| 備考1 | |
| 備考2 | |
| 取引態様 |
| 面積 |
土地面積:734.68㎡ 専有面積・建物面積:179.46㎡ |
|---|---|
| 建物・階 | 1 |
| 建物名 | |
| バルコニー | |
| 賃貸区分 | |
| 契約期間 | |
| 更新料 | |
| その他一時金 | |
| 入居日 | |
| 敷金 | |
| 精算方式 | |
| 礼金 | |
| 保証金 | |
| 管理費 | |
| 保険 | |
| 共益費 | |
| 雑費 |
お問い合わせ先
谷口工務店(0875-72-3117)
この物件に関する資料請求・お問い合わせは、直接上記不動産業者にお願いいたします。
